Выберите комплектацию—ПМЖ
- Сезонная (Домокомплект)
- Зимняя
- ПМЖ
Характеристики
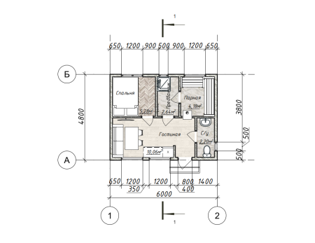
Площадь, м2
—
27
Размер дома
—
6х4.5
Этажность
—
Одноэтажные
Срок строительства, дней
—
1
Количество доставок
—
1-1-2
Вид объекта
—
Баня
Новая цена (только наличные)
949 000 руб. Старая цена (или ипотека)
1 031 600 руб.
-8%
Экономия 82 600 руб.
Нашли дешевле?
В заявку
Получить консультацию
Получить презентацию
Комплектация
Сезонная
Зима
ПМЖ
Сборка
Оплачивается отдельно
Оплачивается отдельно
Оплачивается отдельно
Основание дома
Брус 100х150мм (обвязка во всех направлениях и по кругу)
Брус 150х150мм (обвязка во всех направлениях и по кругу)
Брус 150х150мм (обвязка во всех направлениях и по кругу)
Лаги пола и потолка
Из доски 40х100мм с расстоянием между лагами 590мм
Из доски 40х150мм с расстоянием между лагами 590мм
Из доски 40х200мм с расстоянием между лагами 590мм
Пол черновой
Обрезная доска 100*20 мм - второй сорт
Обрезная доска 100*20 мм - второй сорт
Обрезная доска 100*20 мм - первый сорт
Пол предчистовой
Шпунтованная доска пола 27 мм камерной сушки (3 метра)
Шпунтованная доска пола 36 мм камерной сушки
Шпунтованная доска пола 36 мм камерной сушки
Высота потолка
2.3 м
2.4 м
2.4 м
Стены
Каркасно-щитовые. По стенам подшита евровагонка AB по паро-гидроизоляции с двух сторон. Утепление-100мм.
Каркасно-щитовые. По стенам подшита евровагонка AB по паро-гидроизоляции с двух сторон. Утепление-150мм.
Каркасно-щитовые. По стенам подшита евровагонка АВ по паро-гидроизоляции с двух сторон. Утепление-200мм.
Вент зазор на кровлю
нет
нет
да
Вент зазор на фасад
нет
нет
да
Вент. решетки на фронтоны
2 шт
2 шт
2 шт
Крыша
Стропила-40х100мм. Кровля укладывается и закрепляется на обрешётке из доски 22-25мм. по паро-гидроизоляция.
Стропила-40х150мм. Кровля укладывается и закрепляется на обрешётке из доски 22-25мм. по паро-гидроизоляция.
Стропила-40х200мм. Кровля укладывается и закрепляется на обрешётке из доски 22-25мм. по паро-гидроизоляция.
Покрытие кровли
Цветной профлист с ветровыми планками
Металлочерепица с ветровыми планками
Металлочерепица с ветровыми планками
Высота конька
0,7 метра
0,7 метра
0,7 метра
Окна:1200х1800-2шт, входная группа 800х2000-1шт, 500*500-1шт
ПВХ однокамерные, цвет белый, поворотный механизм
ПВХ однокамерные, цвет белый, поворотный механизм
ПВХ двухкамерные, цвет белый, поворотный механизм
Двери межкомнатные
Деревянные филенчатые.
Деревянные филенчатые.
Деревянные филенчатые.
Дверь входная
Деревянная
Металлическая (Россия) цвет коричневый
Металлическая (Россия) цвет коричневый
Осиновая вагонка.Утепление с фольгой. Устройство двухуровневых осиновых пологов.
Осиновая вагонка. Утепление с фольгой. Устройство двухуровневых осиновых пологов.
Осиновая вагонка. Утепление с фольгой. Устройство двухуровневых осиновых пологов.
Защита стены около печи
плита фиброцементная + базальтовый фольгированный картон
плита фиброцементная + базальтовый фольгированный картон
Печь
Печь ВЕЗУВИЙ Оптимум Стандарт 14
Печь ВЕЗУВИЙ Оптимум Стандарт 14
Основание печи
супер - сил под стальной лист 2 мм
супер - сил под стальной лист 2 мм
Окно в парную
нет
нет
нет
Терраса
Входит в стоимость 12 кв.м
Входит в стоимость 12 кв.м
Входит в стоимость 12 кв.м
Обшика столбов имитацией бруса
нет
нет
нет
Подшивка террасы под конек
входит в стоимость
входит в стоимость
входит в стоимость
Шторки на террасе
входит в стоимость
входит в стоимость
входит в стоимость
Ступени на террасе по всей длине
входит в стоимость
входит в стоимость
входит в стоимость
Допы для парной:
- Экранированная защита в парной
- Установка / Замена окна на 400*400 мм
- Техноплекс в полы
- Стеклянная дверь в парную
- Бак водяной 55 л.
Отзывы
Оставить отзыв
Загрузка отзывов...
Доставка стройматериалов для будущего дома, бани, дачи или бытовки осуществляется грузовым транспортом компании Полесье. Стоимость доставки зависит от размера дома и удаленности вашего земельного участка от производственного комплекса компании. И рассчитывается менеджером индивидуально
Вам также может понравиться
