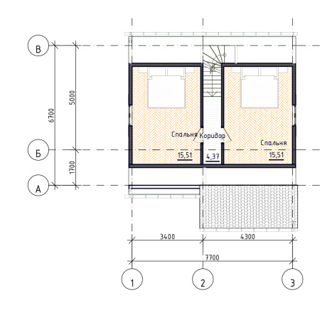
🏠Каркасный дом Жемчужина - 2 7x8 метров от 1594800 руб. Цены на строительство в Рязани
0
Корзина