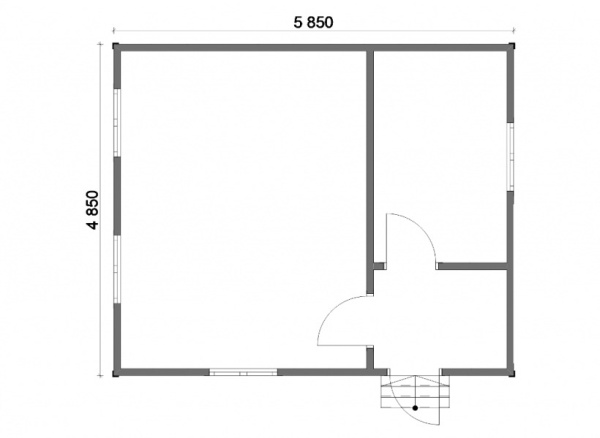
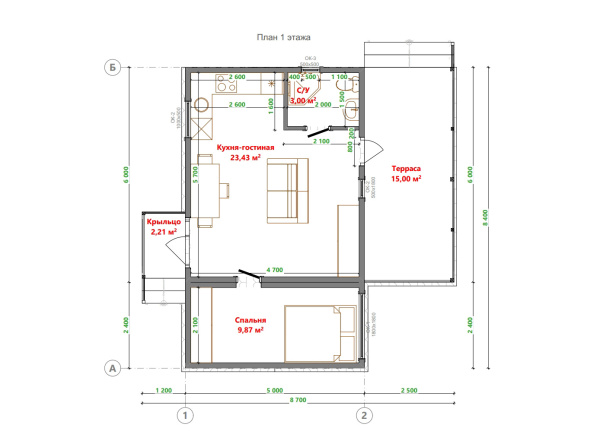
Если вы хотите стать владельцем уютного коттеджа, который имеет доступную стоимость и возводится в кратчайшие сроки, обратите внимание на проекты модульных домов. Такие объекты собираются из готовых привезенных на участок модулей, что существенно экономит время. К готовому коттеджу можно подвести инженерные коммуникации и пользоваться всеми удобствами.
Компания “Полесье” осуществляется строительство модульных домов для круглогодичного проживания под ключ. На сайте представлены примеры типовых проектов. Вы можете выбрать один из них или заказать разработку и реализацию индивидуального эскиза. Сегодня возводить модульные конструкции можно в любое время года, и это никак не сказывается на качестве готового объекта.
Достоинства модульных домов
Модульная технология строительства предполагает минимальное время сборки коттеджа на участке. Модули собираются в производственных условиях с использованием специальных панелей и бруса. Уже через 2 недели с момента начала работ можно построить полноценный коттедж, готовый к проживанию.
К основным преимуществам модульных домов относятся:
- Надежность. При правильной обработке материала коттедж будет служить несколько десятилетий без необходимости проведения капитального ремонта. Все подготовительные мероприятия мы осуществляем на производстве с применением экологичных составов.
- Выгодная стоимость. Строительство осуществляется без использования тяжелой техники. Основательный фундамент, как при типовом домостроении, также не требуется, что значительно снижает конечную стоимость работ.
- Возможность возведения на любом грунте. В отличие от кирпичных и блочных домов, модульные коттеджи можно строить на участке практически с любым типом почвы. В случае необходимости строение можно разобрать и перевезти в другое место. Усадка также практически полностью отсутствует, поэтому домовладельцы могут сразу заселяться в свое новое жилье.
- Комфорт. Благодаря качественному утеплению стены надежно защищены от промерзания. Модульные дома хорошо удерживают тепло и отличаются устойчивостью к неблагоприятным условиям. В таком коттедже всегда будет благоприятный микроклимат.
Работайте с профессионалами своего дела!
Сотрудничать с нами удобно и выгодно. Мы тщательно следим за соблюдением технических и санитарных требований и выполняем строительные работы по ГОСТу. Благодаря наличию собственной производственной линии мы имеем возможность контролировать все этапы возведения модульных домов под ключ. Мы обеспечиваем строгое соблюдение установленных сроков. Наша компания имеет собственный автопарк, который включает более 30 грузовых автомобилей и манипуляторов. Наличие собственного транспорта позволяет нам оперативно доставлять материалы на участок и выполнять работы без простоев. Готовые объекты проходят обязательную проверку. Мы на 100% уверены в результате и подтверждаем качество объектов гарантией 1 год.
Предусмотрена возможность поэтапной оплаты. Сразу после заключения соглашения вносится 15% от указанной в нем суммы. После доставки и разгрузки материалов на участке - 75% стоимости. После завершения строительства и подписания акта сдачи-приемки объекта - оставшиеся 10% от суммы.
Наше предложение вас заинтересовало? Чтобы купить модульный дом для постоянного проживания, обращайтесь к нашим специалистам по указанному на сайте телефону или при помощи обратного звонка. Мы поможем подобрать подходящий проект и воплотим его в реальность.
