Выберите комплектацию—Зимняя
- Летняя
- Сезонная (Домокомплект)
- Зимняя
Таблица размеров
Характеристики
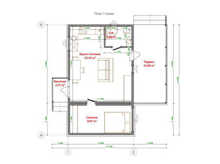
Площадь, м2
—
45
Размер дома
—
5x8,5
Этажность
—
Одноэтажные
Кол-во спален
—
1
Срок строительства, дней
—
1
Вид объекта
—
Модульный дом
0000
Новая цена (только наличные)
1 350 000 руб. Старая цена (или ипотека)
1 467 400 руб.
-8%
Экономия 117 400 руб.
Нашли дешевле?
В заявку
Получить консультацию
Примечание-подсказка
Комплектация
Летняя
Сезонная
Зима
Сборка ВКЛЮЧЕНА!
Каркасная
Каркасная
Каркасная
Работа крана
Включена (при высоте потолка 2,4 м)
Включена (при высоте потолка 2,4 м)
Включена (при высоте потолка 2,4 м)
Основание дома (обвязка)
Брус 100х100 - обвязка в одном направлении
Брус 100х150 - обвязка во всех направлениях
Брус 100х150 - обвязка во всех направлениях
Лаги пола
Из доски 40х100мм с расстоянием между лагами 600мм
Из доски 40х150мм с расстоянием между лагами 600мм
Из доски 40х150мм с расстоянием между лагами 600мм
Пол черновой
20х100 мм сплошной (2 сорт)
20х100 мм сплошной (2 сорт)
20х100 мм сплошной (2 сорт)
Пол предчистовой
ДСП 18 мм
Шпунтованная доска пола 27мм камерной сушки
Шпунтованная доска пола 36мм камерной сушки
Высота потолка
2,4 / 2,2 м
2,4 / 2,2 м
2,4 / 2,2 м
СТЕНЫ ВНУТРЕННИЕ
Каркасные. По стенам подшита вагонка "С" по паро-гидроизоляции с двух сторон. Утепление-50мм.
Каркасные. По стенам подшита вагонка AB по паро-гидроизоляции с двух сторон. Утепление-50мм.
Каркасные. По стенам подшита вагонка AB по паро-гидроизоляции с двух сторон. Утепление-100мм.
СТЕНЫ НАРУЖНЫЕ
Утепление-100мм.
Утепление-100мм.
Утепление-150мм.
ФАСАДЫ
Евровагонка класса С
Евровагонка класса АБ
Имитация бруса класса АБ - вертикально
ТОРЦЫ
Евровагонка класса С
Евровагонка класса АБ
Профлист графит+ ветровые планки на углы. Установка вертикально
Вент зазор на кровлю
нет
нет
нет
Вент зазор на фасад
нет
нет
нет
Крыша
Стропила-40х100мм. Кровля укладывается и закрепляется на обрешётке из доски 22-25мм. по паро-гидроизоляция.
Стропила-40х100мм. Кровля укладывается и закрепляется на обрешётке из доски 22-25мм. по паро-гидроизоляция.
Стропила-40х150мм. Кровля укладывается и закрепляется на обрешётке из доски 22-25мм. по паро-гидроизоляция.
Водосточная система
нет
ПВХ, цвет белый
металл, цвет графит
Покрытие кровли
Оцинкованный профлист с ветровыми планками
Цветной профлист с ветровыми планками
Профлист графит с ветровыми планками
Окна: 1800x1800мм - 2шт, 1000x500мм - 1шт
ПВХ однокамерные, цвет белый, поворотный механизм
ПВХ двухкамерные, цвет белый, поворотный механизм
ПВХ двухкамерные, ламинация графит, поворотный механизм
Двери межкомнатные
Деревянные филенчатые.
Деревянные филенчатые.
Деревянные филенчатые
Дверь входная, задняя дверь
Входная группа ПВХ 1400х2000, 800х2000
Входная группа ПВХ 1400х2000, 800х2000
Входная группа ПВХ 1400х2000, 800х2000
Терраса ОПЛАЧИВАЕТСЯ ОТДЕЛЬНО!
Стойка из бруса 100х100мм. Ограждение из доски 30х90мм. Обшить столбы имитацией бруса
Стойка из бруса 100х100мм. Ограждение из доски 30х90мм. Обшить столбы имитацией бруса
Стойка из бруса 100х100мм. Ограждение из доски 30х90мм. Обшить столбы имитацией бруса
Отзывы
Оставить отзыв
Загрузка отзывов...
Доставка стройматериалов для будущего дома, бани, дачи или бытовки осуществляется грузовым транспортом компании Полесье. Стоимость доставки зависит от размера дома и удаленности вашего земельного участка от производственного комплекса компании. И рассчитывается менеджером индивидуально
