Выберите комплектацию—Сезонная
- Сезонная
- Зимняя
- ПМЖ
- Люкс
Характеристики
Площадь, м2
—
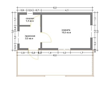
30
Размер дома
—
6х5
Этажность
—
Одноэтажные
Срок строительства, дней
—
1 день
Количество доставок
—
1-2-2
Вид объекта
—
Дом
Новая цена (только наличные)
843 300 руб. Старая цена (или ипотека)
1 004 000 руб.
-16%
Экономия 160 700 руб.
Нашли дешевле?
В заявку
Получить консультацию
Комплектация
Зима
ПМЖ
Люкс
Сборка
Включена в стоимость
Включена в стоимость
Включена в стоимость
Основание, каркас дома, лаги пола и стропила
Доска естественной влажности
Доска естественной влажности
Доска камерной сушки
Основание дома (обвязка в во всех направлениях и по кругу)
Брус 150х150мм
Брус 150х150мм
Брус 150х150мм
Лаги пола
Из доски 40х150мм с расстоянием между лагами 590мм
Из доски 40х200мм с расстоянием между лагами 590мм
Из доски 40х200мм с расстоянием между лагами 590мм
Пол черновой
Обрезная доска 100*20 мм - первый сорт
Обрезная доска 100*20 мм - первый сорт
Обрезная доска 100*20 мм - первый сорт
Сетка от грызунов
Дополнительно
Включено
Включено
Пол предчистовой 1-2 этажа
Шпунтованная доска пола 36мм камерной сушки
Шпунтованная доска пола 36мм камерной сушки
Шпунтованная доска пола 36мм камерной сушки
Высота потолка
2.5 м
2.5 м
2.5 м
Наружние стены 1,2 этажа
Каркасные, имитация бруса AB - снаружи, евровагонка класса АБ (3 метра) - внутри. Утепление-150мм.
Каркасные, имитация бруса AB - снаружи, евровагонка класса АБ (3 метра) - внутри. Утепление-200мм.
Каркасные, имитация бруса AB - снаружи, евровагонка класса АБ (3 метра) - внутри. Утепление-200мм.
Наружные стены с внутренней стороны и перекрытие верхнего этажа
Внахлест
Внахлест
Проклеивание пленок влаго/парозащиты на ленту
Перегородки
Каркасные. По стенам подшита евровагонка класса С (3 метра). Утепление-100мм.
Каркасные. По стенам подшита евровагонка класса AB (3 метра). Утепление-100мм.
Каркасные. По стенам подшита евровагонка класса AB (3 метра). Утепление-100мм.
Вент зазор на кровлю
да
да
да
Вент зазор на фасад
нет
да
да
Вент. решетки на фронтоны
2 шт
2 шт
2 шт
Крыша
Стропила-40х100мм. Кровля укладывается и закрепляется на обрешётке из доски 22-25мм. по паро-гидроизоляция.
Стропила-40х150мм. Кровля укладывается и закрепляется на обрешётке из доски 22-25мм. по паро-гидроизоляция.
Стропила-40х200мм. Кровля укладывается и закрепляется на обрешётке из доски 22-25мм. по паро-гидроизоляция.
Покрытие кровли
Цветной профлист с ветровыми планками
Металлочерепица с ветровыми планками
Металлочерепица с ветровыми планками
Карнизная полка
360 мм
360 мм
360 мм
Водосточная система ПВХ
дополнительно
дополнительно
включено
Высота конька
1,5 м
1,5 м
1,5 м
Подшивка всего дома под конек
нет
нет
нет
Металлические отливы на окна
дополнительно
включено
включено
Окна: 1000*1000-3 шт, 500*500-1 шт
ПВХ двухкамерные, цвет белый, поворотный механизм
ПВХ двухкамерные, цвет белый, поворотный механизм
ПВХ двухкамерные, цвет белый, поворотный механизм
Двери межкомнатные
Деревянные филенчатые.
Деревянные филенчатые.
Деревянные филенчатые.
Дверь входная
Металлическая (Россия) цвет коричневый
Металлическая (Россия) цвет коричневый
Металлическая (Россия) цвет коричневый
Террасса
Входит в стоимость - 12 кв.м.
Входит в стоимость - 12 кв.м.
Входит в стоимость - 12 кв.м.
Обшить столбы имитацией бруса
нет
да
да
Стоимость
2 009 300
2 107 000
2 261 800
| Дополнительные опции | |
|---|---|
| Наименование | Цена |
| АКЦИЯ | |
| Обработка основания и каркаса дома антисептиком "НЕОМИД" (СВАИ 89х2500 В ПОДАРОК: 12) | |
| Терраса / Увеличение террасы (от 5 кв.м.) | |
| Сваи на веранду 108х2500мм с установкой и смесью | |
| Терраса профнастил (1 м2 - 13500 р) | |
| Терраса металлочерепица (1 м2 - 14500 р) | |
| Терраса мягкая кровля (1 м2 - 20000 р) | |
| Ступени на террасе по всей длине, пог. метр | |
| Шторки на террасе, пог. метр | |
| Подшивка террасы под конек (1 кв. метр - 2700 р) | |
| Обшивка столбов имитацией бруса | |
| ИЗМЕНЕНИЕ УТЕПЛЕНИЯ | |
| Утепление этажа вкруг (стены/полы/потолок) + 50 мм | |
| ВЕНТ.ЗАЗОРЫ | |
| Вент. зазор на кровлю | |
| Вент. зазор на фасад | |
| УВЕЛИЧЕНИЕ ПОТОЛКА | |
| Увеличение потолка + 100 мм (Каждые 100 мм. - 900 р) | |
| КРОВЛЯ | |
| Изменение на металлочерепицу | |
| Изменение цвета на графит | |
| Изменение на мягкую кровлю | |
| Увеличение конька крыши до 1,8 м | |
| Увеличение конька крыши до 2,1 м | |
| Подшивка потолка под конек (1 кв. метр - 2700р) | |
| Водосточная система ПВХ | |
| Увеличение выноса карнизной полки до 500мм | |
| Изменение кровли на цветной профлист (для сезонной) | |
| ПЕРЕГОРОДКИ,ДВЕРИ | |
| Дополнительная дверь (филенчатая) | |
| Дополнительная перегородка( 1 м.пог.-4000 р) | |
| Антресоль 3000 р / кв.м | |
| Дверь металлическая Россия - цвет шоколад | |
| Дверь металлическая Россия - цвет графит | |
| Дверь с терморазрывом (цвет на выбор) | |
| ВНУТРЕННЯЯ ОТДЕЛКА | |
| Изменение на имитацию бруса класса "А-В" | |
| Двустроняя отделка имитация бруса класса "А-В" | |
| ВНЕШНЯЯ ОТДЕЛКА | |
| Изменение на блок-хаус класса "А-В" | |
| Изменение на имитацию бруса класса "А-В" | |
| Вертикальная имитация бруса класса "А-В" | |
| Стены барн | |
| Профнастил под фальц стены (только на барны) | |
| Обшивка дома Hauberk (1 кв.м - 3700р) | |
| Цокольный сайдинг (1 кв.м - 2500р) | |
| ФУНДАМЕНТ | |
| Сваи 108х2500мм с установкой и смесью 12 штук | |
| Обвязка свайного фундамента профильной трубой 40х20 в два ряда | |
| Сваекрут | |
| ПОЛЫ | |
| Половая доска 36 мм | |
| Сетка от грызунов | |
| ДОПЫ ПО СП | |
| Проклеивание пленок влаго/парозащиты на ленту, вместо нахлеста. Наружные стены с внутренней стороны и перекрытие верхнего этажа | |
| Усиление крыши. Монтаж на уголки с запилом. Установка капельников и проклейка уплотнителем под конек | |
| ДОПОЛНИТЕЛЬНО | |
| Ступени входа без перил | |
| Ступени входа с перилами | |
| Перенос по участку свыше 30 м ( 1 метр 700 р) | |
| Аренда генератора ( 1 день-3800 р) | |
| Аренда бытовки | |
| Доставка | |
| ОКНА (Установка дополнительных окон в конструкции дома) | |
| Изменение на двухкамерные всех базовых окон | |
| Металлические отливы на окна | |
| Ламинация всех базовых окон | |
| Изменение на профиль Rehau | |
| Окно однокамерное ПВХ 500х500мм -1 створка распашная | |
| Окно однокамерное ПВХ 700х900мм -1 створка распашная | |
| Окно однокамерное ПВХ 1000х1000мм -1 створка распашная | |
| Окно однокамерное ПВХ 1000х1200мм -1 створка распашная | |
| Окно однокамерное ПВХ 1800х1800мм -1 створка распашная | |
| Окно однокамерное ПВХ 900х1800мм -1 створка распашная | |
| Окно однокамерное ПВХ 600х1800мм -1 створка распашная | |
| Окно однокамерное ПВХ 1200х1800мм -1 створка распашная | |
| Стеклянная входная дверь однокамерная ПВХ 800х2000 мм с замком | |
| Стеклянная входная группа однокамерное ПВХ 1400х2000мм с замком | |
| Поворотно-откидной механизм | |
| Москитная сетка | |
| ИТОГО: | 2 184 000 руб. |
Отзывы
Оставить отзыв
Загрузка отзывов...
Доставка стройматериалов для будущего дома, бани, дачи или бытовки осуществляется грузовым транспортом компании Полесье. Стоимость доставки зависит от размера дома и удаленности вашего земельного участка от производственного комплекса компании. И рассчитывается менеджером индивидуально
| Коммуникации | ||||
|---|---|---|---|---|
| Наименование работ | Описание | Количество | Единица измерения | Итого |
| Электрика открытого типа (кабель-канал ) | ||||
| Розетка одинарная (накладная) Этюд | Монтаж розетки накладной с учетом кабельной линии(ВВГ-Пнг(А)LS2,5мм) и кабельканала(цвет дерева или белый по выбору). Стандартная установка 20 см от пола. | шт. | ||
| Розетка двойная (накладная) Этюд | Монтаж розетки накладной с учетом кабельной линии(ВВГ-Пнг(А)LS2,5мм) и кабельканала(цвет дерева или белый по выбору). Стандартная установка 20 см от пола. | шт. | ||
| Розетка тройная (накладная) Этюд | Монтаж розетки накладной с учетом кабельной линии(ВВГ-Пнг(А)LS2,5мм) и кабельканала(цвет дерева или белый по выбору). Стандартная установка 20 см от пола. | шт. | ||
| Вывод на освещение (светильник отдельно) | Вывод кабельных линий(ВВГнгLSП1,5мм) на освещение, установка патрона и лампы освещения, монтаж кабельканала (цвет дерева или белый по выбору) + светильник 2к (Эра) | шт. | ||
| Выключатель одноклавишный Этюд | Монтаж выключателя с учетом кабельной линии(ВВГ- Пнг(А)LS1,5мм) и кабельканала(цвет по выбору). Стандартная установка на высоте 90см от пола. | шт. | ||
| Выключатель двухклавишный Этюд | Монтаж выключателя с учетом кабельной линии(ВВГ- Пнг(А)LS1,5мм) и кабельканала(цвет по выбору). Стандартная установка на высоте 90см от пола. | шт. | ||
| Выключатель трехклавишный Этюд | Монтаж выключателя с учетом кабельной линии(ВВГ- Пнг(А)LS1,5мм) и кабельканала(цвет по выбору). Стандартная установка на высоте 90см от пола. | шт. | ||
| Вывод на вентилятор | Вывод кабельных линий(ВВГнгLSП1,5мм) на вентилятор в С/У(помещениях с повышенной влажностью), монтаж кабельканала (цвет по выбору) | шт. | ||
| Вывод нестандартного сечения провода (3*4; 4*5; 5*2,5 мм) в пределах дома и на фасад | Вывод кабельных линий(ВВГнгLSП сечение проводника согласно заявленной мощности потребления) на конвектор, плиту, посудомоечную машину, стирально-сушильную машину, бойлер,котел. Монтаж кабельканала (цвет дерева или белый по выбору) |
шт. | ||
| Заземление модульно-штыревое | Монтаж штыревого заземления на глубину 6м., вывод заземляющего кабеля в дом. | компл. | ||
| Щит распределительный для домов площадью от 100 м2 . + автоматы | Распределительный щит накладной, соответсвующий высоким требованиям по обеспечению безопасности (технологичность сверх норм ПУЭ), высококачественная автоматика IEK ВА, со степенью отключающей способности не менее 6кА. Защитное отключение УЗО. Вводной автомат. | компл. | ||
| Щит распределительный для домов площадью до 100 м2 . + автоматы | Распределительный щит накладной, соответсвующий высоким требованиям по обеспечению безопасности (технологичность сверх норм ПУЭ), высококачественная автоматика IEK ВА, со степенью отключающей способности не менее 6кА. Защитное отключение УЗО. Вводной автомат. | компл. | ||
| Щит распределительный для домов площадью до 35 м2 . + автоматы | Распределительный щит накладной, соответсвующий высоким требованиям по обеспечению безопасности (технологичность сверх норм ПУЭ). Защитное отключение УЗО. Вводной автомат. | компл. | ||
| Подключение вводного кабеля | Подключение вводного кабеля в ЩР, согласно напряжению, монтаж глухозаземленной нейтрали (стоимость прокладки кабеля просчитывается отдельно по факту произведения замеров) | шт. | ||
| Подготовка отверстий в стенах | шт. | |||
| Изменение на ретро винтаж - сосна 15% | ||||
| Итого по разделу: | 0 руб. | |||
| Отопление жидкостное (радиаторы + котел) | ||||
| Установка электрического котла до 48 кв.м | Котел электрический OASIS 3квт | шт. | ||
| Установка электрического котла свыше 48 кв.м | Котел электрический Navien 12квт | шт. | ||
| Гидроаккумулятор на 50 литров | Монтаж гидроаккумулятора(50 литров) АКВАБРАЙТ ГМ-50 в котельном помещении. С использованием фильтра отчистки воды и крана с тройником для подключения | шт. | ||
| Обвязка котла с гидроаккумулятором | Полипропилен | шт. | ||
| Радиаторы отопления | Установка алюминиевых радиаторов отопления Therma | шт. | ||
| Подготовка отверстий в стенах | шт. | |||
| Опресовка и заливка системы | шт. | |||
| Опресовка и заливка системы двухэтажных домов | шт. | |||
| Бойлер электрический 100 литров | Монтаж бойлера 100 литров (настенный) Thermex системы защиты: УЗО, от перегрева, работы без воды, предохранительный клапан функции: индикатор включения, термометр, ограничение температуры нагрева | шт. | ||
| Установка фильтрационных элементов | Монтаж дополнительных фильтров на вводе системы водоснабжения. | шт. | ||
| Узел ввода воды (простой) | УВВ: Ниппель, кран шаровый, фильтр косой ППР для установки греющего кабеля на вводе воды в дом. | компл. | ||
| Обогрев ввода воды в дом. Установка греющего кабеля. | Монтаж греющего кабеля(внутреннего 6 метров) подключение к узлу ввода воды. Для избежания замерзания в зимний период трассы ввода водоснабжения в дом. | шт. | ||
| Итого по разделу: | 0 руб. | |||
| Вода и канализация (монтаж открытого типа) | ||||
| Точки водоснабжения холодная | Монтаж точек холодного водоснабжения, трубы из армированного полипропилена ППР ф20мм и ф25 мм | шт. | ||
| Точки водоснабжения горячая | Монтаж точек горячего водоснабжения, трубы из армированного полипропилена ППР ф20мм и ф25 мм | шт. | ||
| Точки канализации | Монтаж системы канализации из ПВХ труб(производство Россия) | шт. | ||
| Итого по разделу: | 0 руб. | |||
| Вода и канализация (монтаж открытого типа) - под домом | ||||
| Точки водоснабжения холодная | Под домом. Утепление 100 мм | шт. | ||
| Точки водоотведения | Под домом. Утепление 100 мм | шт. | ||
| Итого по разделу: | 0 руб. | |||
| Наружные сети | ||||
| Монтаж вводного кабеля электричество (в земле) | Монтаж вводного кабеля (ВБбШв 4х10 медный) на глубине 0,7 метра от столба к дому. Окончательная стоимость наружных коммуникаций после выезда специалиста на место объекта | м. | ||
| Монтаж трассы канализации | Монтаж трассы канализации в траншее под уклоном. Раскопка-закопка. Окончательный расчет наружных коммуникаций после выезда специалиста на место объекта | пог.м. | ||
| Монтаж трассы водоснабжения | Прокладка трассы холодного водоснабжения (труба ПНД 32в траншее(ниже глубины промерзания). Раскопка-закопка. Окончательный расчет наружных коммуникаций после выезда специалиста на место объекта | пог.м. | ||
| Скважина на известняк | Бурение скважины на известняк с монтажом обсадной стальной трубы ПНД ф 133 мм и погружной трубы ПНД ф 114 мм. Окончательная стоимость по факту бурения на известняк. | пог.м. | ||
| Монтаж скваженного адаптера и насосного оборудования в скважину, глубиной не более 70 метров. | Монтаж скваженного адаптера на глубине 1,5- 1,7 метра в обсадной трубе скважины. Монтаж скважинного насоса Belamos, труба ПНД ф 32 мм, сливной клапан, обратный клапан, зажимы для троса, трос для поднятия насоса, оголовок для скважины. | компл. | ||
| ТОПАС3 с 1 компрессором | Количество пользователей до 3 человек | шт. | ||
| ТОПАС5 с 1 компрессором | Производительность — 1 м3 в сутки, Количество пользователей до 5 человек, Объем залпового сброса — 220 литров, Мощность — 60Вт в час, Энергопотребление — 1,5 кВт в сутки, Габаритные размеры — Д 0,95 х Ш 0,95 х В 2,0, отработанная вода в ливневку заказчика | шт. | ||
| ТОПАС7 с 1 компрессором | Количество пользователей до 7 человек | шт. | ||
| Итого по разделу: | 0 руб. | |||
| Теплый пол | ||||
| Матовый электрический | кв.м | |||
| Трубный водяной | кв.м | |||
| Итого по разделу: | 0 руб. | |||
| Дополнительно | ||||
| Подготовительные работы | Проверка материала ОТК. Проектирование внутренних и наружных сетей. | кв.м | ||
| Предварительный выезд инженера на объект | Выезд инженера на объект для осмотра технических нюансов участка, дома или фундамента | у.е. | ||
| Доставка материала | Доставка материала на объект удаленность от мкад до 100 километров. | у.е. | ||
| Установка сан узла | шт. | |||
| Установка душевой кабины | шт. | |||
| Установка раковины с зеркалом | шт. | |||
| Итого по разделу: | 0 руб. | |||
| Итого | 0 руб. | |||
Вам также может понравиться
